
当你着手做一个视频监控项目时,脑海里必定会闪过这样的问题:如何设计安防监控系统?集中供电还是本地供电?选择多大镜头的摄像机?摄像机该安装在什么位置?摄像机选择哪种安装方式?一系列问题,思定才能继续工作。下面通过图片的方式一一解答上面的问题。
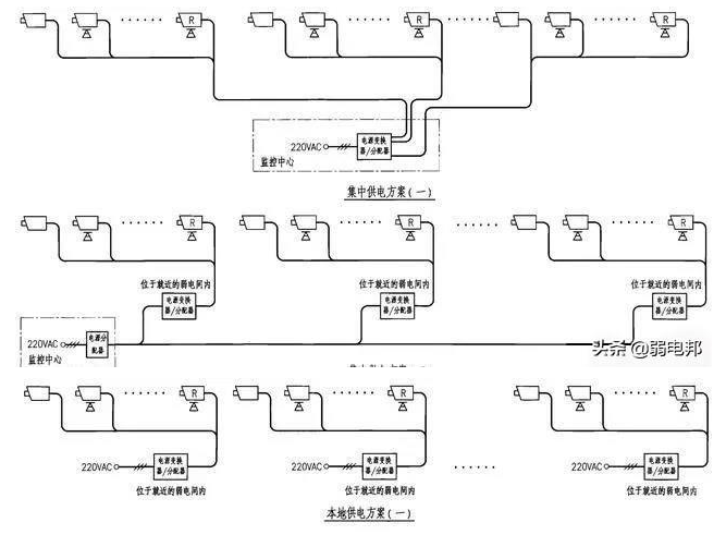
一、摄像机的供电
摄像机的供电因地制宜,可采用集中供电,也可以本地供电,视现场情况而定,两者区别如图。


二、摄像机镜头焦距与视场关系

三、各种场所监控摄像机安装位置
停车场、楼梯口及电梯轿厢、超市、宾馆等场所摄像机布置示意图。




四、摄像机的安装方式
支架安装、杆(柱)安装、吊装、吸顶、嵌入安装方式。










