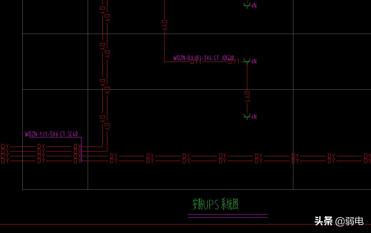
弱电各系统接线图,这个份图纸非常全面,包括大部分弱电系统的接线图与系统图,我们都知道,弱电系统众多,每个系统都是一个大的分支,我们做项目的时候所遇到的绝对不止一个系统,大多数情况下,一个项目由几个或十几个系统组成,所以很多接线图一时难找,本图纸主要包括三部分:
1、弱电各系统图
2、弱电各系统接线图
3、弱电各系统的图标
以及各个细节的接线,是做项目非常好的参考资料。









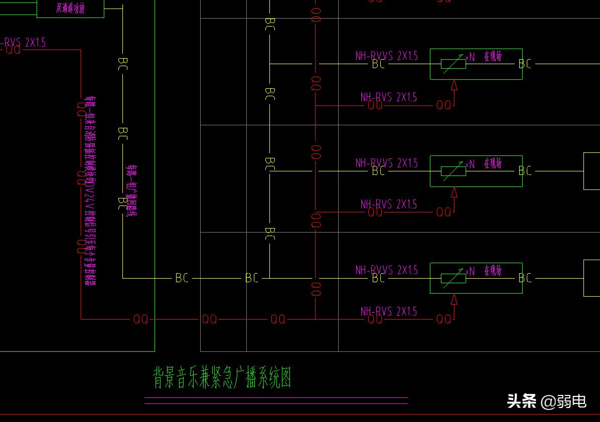
弱电各系统接线图,这个份图纸非常全面,包括大部分弱电系统的接线图与系统图,我们都知道,弱电系统众多,每个系统都是一个大的
弱电各系统接线图,这个份图纸非常全面,包括大部分弱电系统的接线图与系统图,我们都知道,弱电系统众多,每个系统都是一个大的分支,我们做项目的时候所遇到的绝对不止一个系统,大多数情况下,一个项目由几个或十几个系统组成,所以很多接线图一时难找,本图纸主要包括三部分:
1、弱电各系统图
2、弱电各系统接线图
3、弱电各系统的图标
以及各个细节的接线,是做项目非常好的参考资料。









入驻
企业入驻成功 可尊享多重特权
入驻热线:158-7146-9462
请手机扫码访问
小程序
小程序更便捷的查找产品
为您提供专业帮买咨询服务
请用微信扫码
公众号
微信公众号,收获商机
微信扫码关注
顶部