这些停车场项目系统图,安装图、接线图,做项目必知
停车场的施工安装是弱电行业中做的最频繁的项目之一,其中对施工安装与接线不少朋友讨论的最多,在我们VIP技术群中有不少朋友提到相关施工问题。

本期我们一起来详细看一下停车场系统中这些施工细节、系统图、接线图、与项目的实现案例,这些都是在项目中都会遇到的组网图,尤其是停车场的图例这块,经常会用到,本期我们来看下。
一、停车场系统图例




二、停车场系统图




停车场一进一出系统图

三、停车场系统接线图

停车场整体接线图

停车场接线细化图

防砸雷达的接线图

触发雷达的接线图


三、停车场出入口全景图


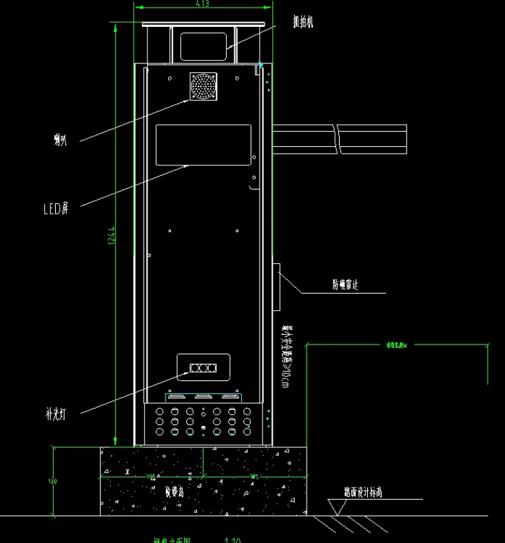
四、停车场出入口细节安装图






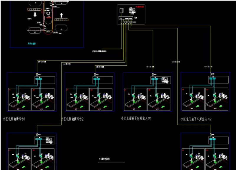
五、小区停车场出入口整体系统图

六、商场停车场所有出入口整体系统图

七、多多出停车场系统图










